CUSTOMER'S VOICE
静岡県静岡市/(株)エイチ フォー様邸
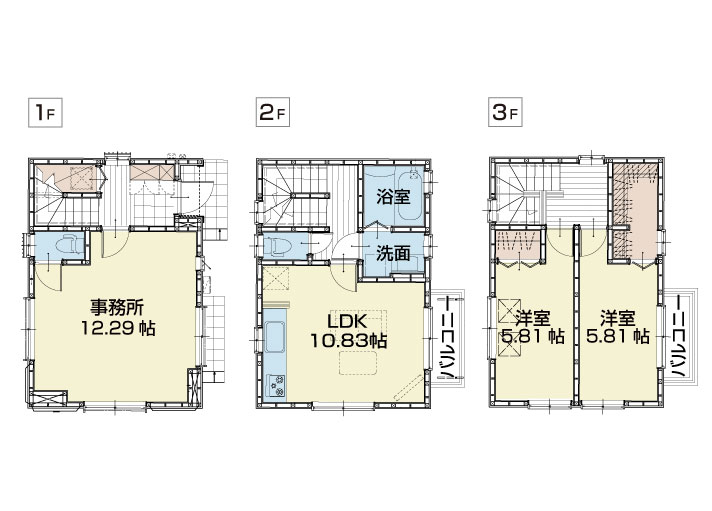
約15坪の極小地に建てた3階建ての事務所兼住宅。

物件情報
| 施主様名 | (株)エイチ フォー様邸 |
|---|---|
| 建築地 | 静岡県静岡市 |
| 間取り | - |
| 店舗 | 藤枝モデル店 |
| 年代 | - |
|---|---|
| 延床面積 | 89.09㎡ |
| 価格帯 | - |
インタビュー&フォトギャラリー
土地探しやプランのご相談、着工からアフターメンテナンスまでハウスメーカーのアイダ設計におまかせください。
あわせて見たい
お客様の声を探す
シーン選択 (各項目複数の選択が可能です)
- 地域
-
- 面積
-
- 年代
-
- 建物
-
- 設備
-
- 特徴
-
しぼり込み結果件










